A U F R E C H T °Zuhause in Odelzhausen° Passivhaus mit einzigartigem, luxuriösem Wohnambiente

Einfach Besich­tigungs­termin verein­baren

Seng ma uns vor Ort

Termin vereinbaren

Objektnummer

5147111

Standort

Odelzhausen

Wohnfläche

181 m²

Grundstücksfläche

542 m²

Kaufpreis

998.800 €

3,57 % Käuferprovision inkl. MwSt. 3,57 % Käuferprovision inkl. MwSt., verdient und fällig mit Beurkundung des notariellen Kaufvertrages. Der Immobilienmakler hat einen provisionspflichtigen Maklervertrag mit dem Verkäufer in mindestens gleicher Höhe abgeschlossen.

Ein Ort zum Ankommen und Durchatmen!

Dieses moderne Einfamilienhaus in Odelzhausen vereint ökologisches Bewusstsein, durchdachte Architektur und höchsten Wohnkomfort. 2010 in hochwertiger Holztafelbauweise vom renommierten Anbieter Augsburger Holzhaus errichtet, erfüllt es die strengen Kriterien eines Passivhauses.

Ein Passivhaus nutzt auf intelligente Weise vorhandene Energiequellen wie Sonnenlicht und Körperwärme zur Beheizung. Dank hervorragender Wärmedämmung, luftdichter Bauweise und einer Lüftungsanlage mit Wärmerückgewinnung bleibt die Wärme im Haus und wird effizient wiederverwendet – ganz ohne klassische Heizsysteme oder sichtbare Heizkörper. Die kontrollierte Belüftung sorgt dabei jederzeit für frische Luft und ein gleichmäßiges, behagliches Raumklima – selbst an kalten Wintertagen.
Das Ergebnis: spürbar niedrige Energiekosten, hoher Wohnkomfort und ein rundum nachhaltiges Wohnkonzept, das ökologisch wie wirtschaftlich überzeugt.

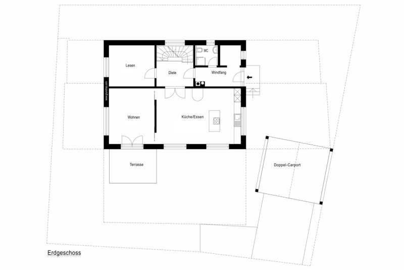
Bereits beim Betreten des Hauses empfängt Sie ein großzügiger, offen gestalteter Eingangsbereich mit Garderobe. Von dem großzügigen Windfang aus erreichen Sie das Gäste-WC, ausgestattet mit einer Dusche.
Der helle Wohnbereich mit hochwertigem Parkettboden, direktem Zugang zur Terrasse mit Poolbereich bildet das Herzstück des Hauses. Mit seinem integrierten Pelletofen lädt der Wohnbereich zu gemütlichen Stunden ein.
Großzügige Fensterflächen sorgen für ein lichtdurchflutetes Ambiente, während die offene Einbauküche mit Kochinsel den kommunikativen Mittelpunkt des Alltags darstellt.
Ein angrenzender Lese- oder Arbeitsraum auf dieser Etage schafft zusätzlich Raum für Rückzug oder Inspiration.

Die liebevoll angelegte Gartenanlage bietet Privatsphäre und Erholung pur.
Ein weiteres Highlight in den Sommermonaten bietet der im Garten liegende beheizbare Salzwasserpool, welcher ideal durch eine Außendusche ergänzt wird –die ideale Naherholung in den Sommermonaten.

Im Obergeschoss erwarten Sie insgesamt vier gut geschnittene Schlafzimmer, die sich ideal als Kinder-, Eltern- oder Arbeitszimmer nutzen lassen.
Das stilvolle Tageslichtbadezimmer überzeugt mit Doppelwaschbecken, Wanne, bodentiefer Dusche und einem angenehmen Raumgefühl.
Die Holzelemente, kombiniert mit klaren Linien und hochwertigen Materialien, schaffen eine warme, moderne Atmosphäre.

Der voll unterkellerte Bereich ergänzt das Raumangebot um einen Vorratsraum sowie den Technikraum, zwei große, beheizbare Kellerräume – ideal für Hobby, Lager oder Homeoffice.

Auch technisch überzeugt das Haus auf ganzer Linie:
Eine Photovoltaikanlage mit Einspeisung ins Netz.
Das KNX-Smart-Home-System ermöglicht komfortable Steuerung von Licht, Beschattung und Haustechnik, während die Lüftungsanlage mit Wärmerückgewinnung und die dreifach verglasten Holz-Alufenster für ein dauerhaft angenehmes Wohnklima sorgen.
Die Beheizung der Bäder wird zudem über eine elektrische Fußbodenheizung ergänzt, diese lässt sich, wie auch die Zuluftheizung der Wohnräume mittels Einzelraumthermostate angenehm temperieren.

Das rundum gelungene Gesamtbild wird durch eine geräumige Doppelgarage sowie einen Außenstellplatz vor dem Haus ergänzt.

Die schöne und gepflegte Einbauküche mit sämtlichen Elektrogroßgeräten, das Smart-Home-System, der Salzwasserpool inkl. der Beheizung (Wärmepumpe) sowie Reinigungsanlage stehen zur Ablöse zur Verfügung.

Rundum bietet dieses Haus mehr als nur einen Rückzugsort – es ist ein durchdachtes Zuhause für jeden, der Wert auf bewusstes, komfortables und ressourcenschonendes Wohnen legt.
WeiterlesenWeniger
Alle Bilder ansehen

Highlights

DIE IMMOBILIE BIETET IHNEN:
° ökologisches Wohnkonzept durch sämtliche Vorzüge eines Passivhauses
° gepflegter Zustand
° attraktiver, lichtdurchfluteter Grundriss
° liebevoll angelegter Garten mit beheizbarem Salzwasserpool und Outdoordusche
° Salzwasserpool mit Wärmepumpe
° Photovoltaikanlage mit Einspeisung ins Netz und rund 250 € Einnahmen pro Monat
° KNX-Smart-Home-System zur komfortablen Steuerung von Licht, Beschattung und Haustechnik
° intelligente Lüftungsanlage mit Wärmerückgewinnung für ein dauerhaft angenehmes Wohnklima
° dreifach verglasten Holz-Alufenster


DIE RÄUMLICHKEITEN BIETEN IHNEN:
° Thermostat-geregelte Zuluftheizung in allen Wohnräumen sowie elektrische Fußbodenheizung in den Bädern der Immobilie
° gepflegte Böden (Parkett sowie Fliesen oder Funier)
° elektrische Beschattung in allen Räumlichkeiten
° offenes und helles Wohnkonzept mit großen Fensterfronten

Das Erdgeschoss
° einladender Entreebereich mit Gäste-WC
° großzügige Garderobe für die ganze Familie
° offener Wohnbereich mit Blick in den Garten
° Essbereich mit integrierter Küche
° große, bodentiefe Fensterfronten mit Blick in den liebevoll angelegten Garten


Das Obergeschoss
° drei wunderschöne Schlafzimmer mit Galerie und bodentiefen Fenstern
° ein weiteres schönes Schlafzimmer mit großem Fenster
° attraktives Tageslichtbadezimmer mit modernem Grundriss; Dusche, WC-Nische, Doppelwaschbecken sowie Badewanne

Das Kellergeschoss
° Waschküche mit Platz für die Technik des Hauses
° ein geräumiger Vorratsraum
° sowie zwei große, beheizte Kellerräume - ideal für Ihre Hobbys oder weiteren Stauraum

ABSTELL- UND NUTZFLÄCHEN:
° Doppelgarage sowie ein Außenstellplatz vor dem Haus
° liebevoll angelegte Außenanlage

Details

Zimmer

6

Schlafzimmer

4

Badezimmer

1

Stellpätze

2

Zustand

Gepflegt

Baujahr

2010

Baujahr

2010

Odelzhausen

ZUHAUSE IN ODELZHAUSEN

Odelzhausen ist eine charmante Marktgemeinde im oberbayerischen Landkreis Dachau und erfreut sich zunehmender Beliebtheit bei Familien, Berufspendlern und all jenen, die naturnah und gleichzeitig gut angebunden wohnen möchten.
Eingebettet in die sanfte Hügellandschaft des Dachauer Landes bietet Odelzhausen eine gelungene Kombination aus ländlicher Ruhe, funktionierender Infrastruktur und schneller Erreichbarkeit der Metropolregion München.

Die Verkehrsanbindung ist hervorragend: Die Anschlussstelle Odelzhausen an der A8 (München–Stuttgart) befindet sich direkt am Ort und ermöglicht eine zügige Verbindung nach München (ca. 30 Minuten Fahrzeit) sowie nach Augsburg. Auch die umliegenden Orte wie Dachau, Fürstenfeldbruck oder Markt Indersdorf sind gut erreichbar.
Für Pendler, die auf öffentliche Verkehrsmittel setzen, stehen mehrere Regionalbuslinien zur Verfügung – darunter Verbindungen nach Dachau, Markt Indersdorf und die Verbindung zur S-Bahnlinie S2, die in Petershausen oder Altomünster Anschluss an das Münchner S-Bahn-Netz bietet.

Die Expressbuslinie X732 verbindet den Ort über die Autobahn A8 direkt mit dem Münchner Stadtteil Pasing – und das in nur rund 33 Minuten Fahrzeit. Der Bus verkehrt werktags im 30-Minuten-Takt und ist damit eine zeitsparende und zuverlässige Alternative zum Auto. Ergänzt wird das Angebot durch die neue Linie X730, die mit zusätzlichen Verbindungen entlang der A8 das ÖPNV-Netz weiter stärkt. Diese schnelle und direkte Busanbindung macht Odelzhausen besonders attraktiv für Berufspendler, die eine ruhige Wohnlage mit effizientem Zugang zur Landeshauptstadt kombinieren möchten.

Die Nahversorgung ist in Odelzhausen gesichert: Supermärkte wie REWE, EDEKA und Lidl, Bäckereien, Metzgereien und ein Getränkemarkt decken den täglichen Bedarf ab. Auch Apotheken, Banken, eine Postfiliale sowie verschiedene Fachgeschäfte sind direkt im Ort angesiedelt. Darüber hinaus finden sich in der Umgebung zahlreiche Hofläden und regionale Direktvermarkter.

Für Familien mit Kindern bietet Odelzhausen ein attraktives Umfeld mit kurzen Wegen. Im Ort befinden sich mehrere Kindertageseinrichtungen, darunter Kinderkrippen, Kindergärten und ein Waldkindergarten. Die Grund- und Mittelschule sowie eine Realschule Odelzhausen ist zentral gelegen, weiterführende Schulen wie weitere Realschulen als auch Gymnasien befinden sich in Dachau, Markt Indersdorf oder Maisach – und sind mit dem Schulbus gut erreichbar.

Auch die medizinische Versorgung ist solide: Allgemeinärzte, Zahnärzte, Facharztpraxen und eine Apotheke sind im Ort vorhanden. Für weiterführende Behandlungen stehen die Kliniken in Dachau, Fürstenfeldbruck oder Augsburg in angemessener Entfernung zur Verfügung.

Zudem bietet Odelzhausen eine hohe Lebensqualität mit einem regen Vereinsleben, zahlreichen Sportangeboten, gepflegten Wander- und Radwegen sowie vielseitigen Freizeitmöglichkeiten. Ein besonderes Highlight ist das historische Schloss Odelzhausen mit Hotel und Gastronomie, das dem Ort eine besondere kulturelle Note verleiht.
Google Maps laden Durch Aktivieren der Kartenfunktion wird eine Verbindung zu den Google-Servern hergestellt und Cookies gespeichert. Bitte beachten Sie unsere Datenschutzerklärung und die Datenschutzinformationen von Google.

Interesse an diesem Objekt?

Wir senden Ihnen gerne weitere Unterlagen zu. Bitte füllen Sie dafür folgendes Formular aus.

Objekt Nr. 5147111

Odelzhausen

Anrede
Vorname *
Nachname *
E-Mail-Adresse *
Firma (optional)
Straße + Hausnr.
PLZ / Ort
Telefonnummer
Was dürfen wir für Sie tun?


Die mit dem * Stern markierten Felder müssen unbedingt ausgefüllt werden.

Ihr Ansprechpartner

Aufrecht Immobilienagentur GmbH
Jessica Golonka
Wieningerstr. 22
85221 Dachau
08131 337 8980
info@aufrecht-immo.de

 

< zurück zur Übersicht

 

Whatsapp E-Mail Anruf Immobiliengesuch